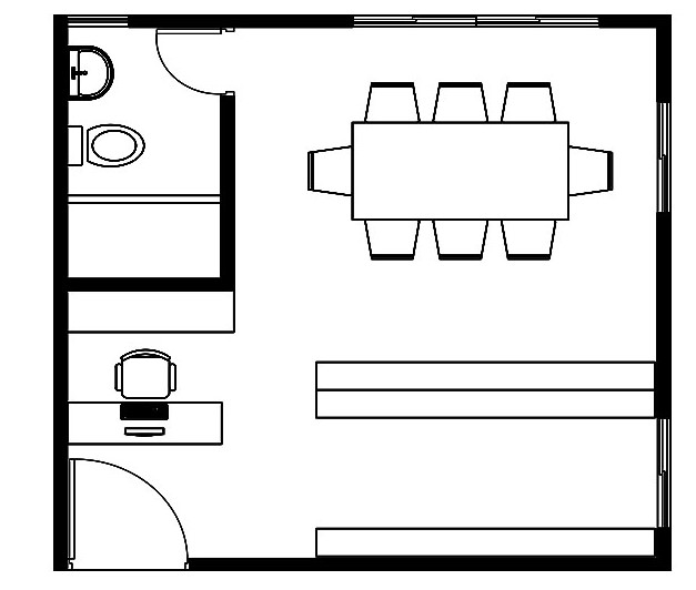
Basically It is a small project for learning Ergonomics. This projects helps to me find about human dimension and human movement space . I designed a smaller library, there is two bookshelf and reading table and one reception table. This model was made by me. Its a hand model .I hope you can like it.
Top View
Furniture
Window View




0 comments:
Post a Comment